︎
︎
HOME
PROJEKTE
MEDIEN
BÜRO
KONTAKT
017_SCHU
BASEL
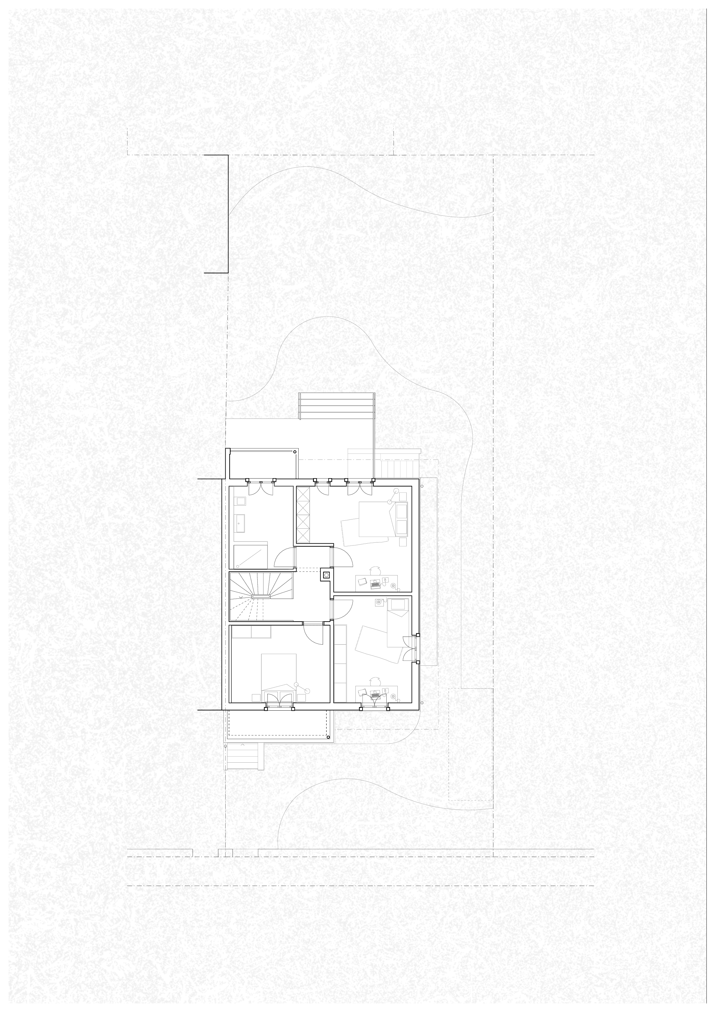
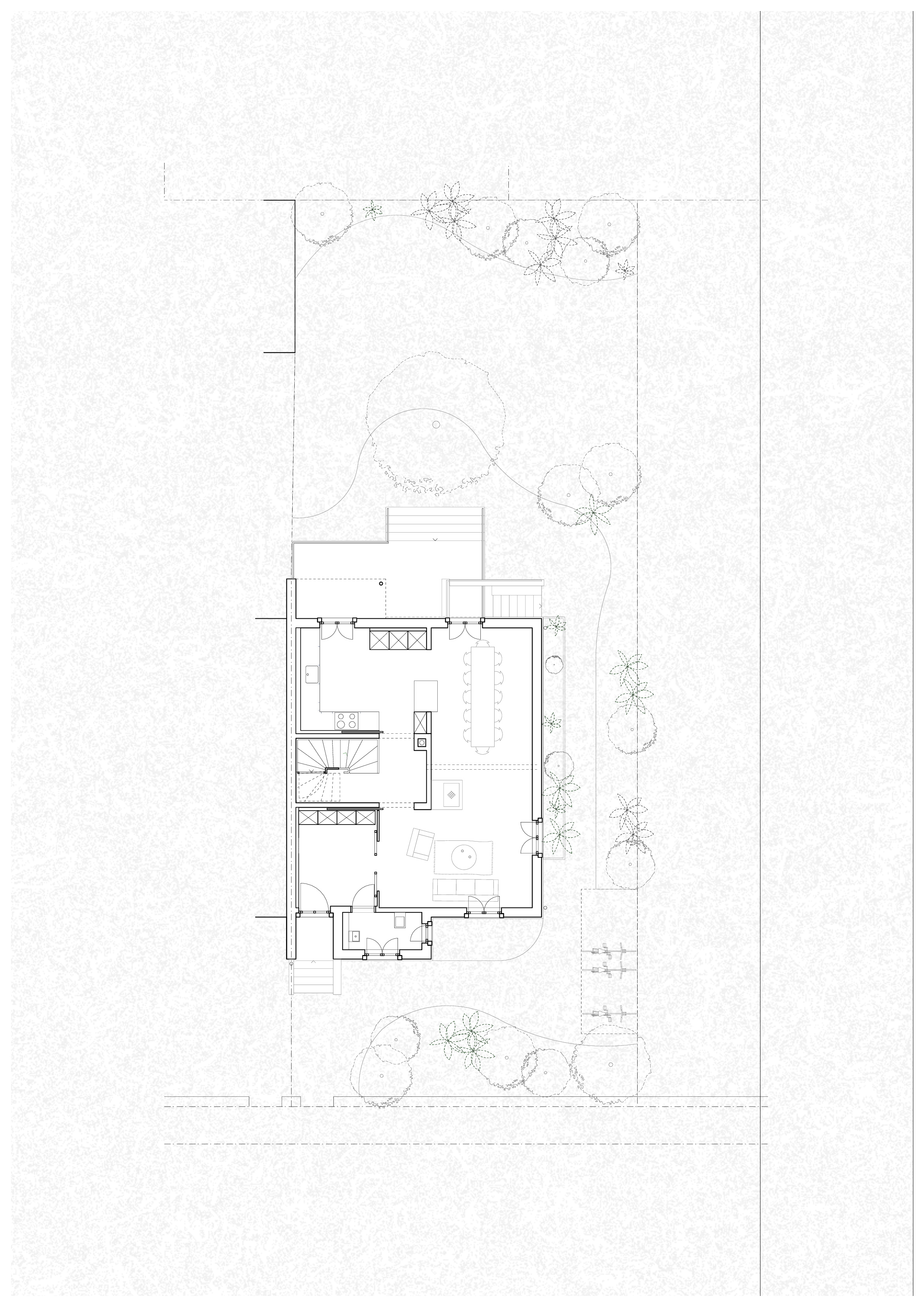
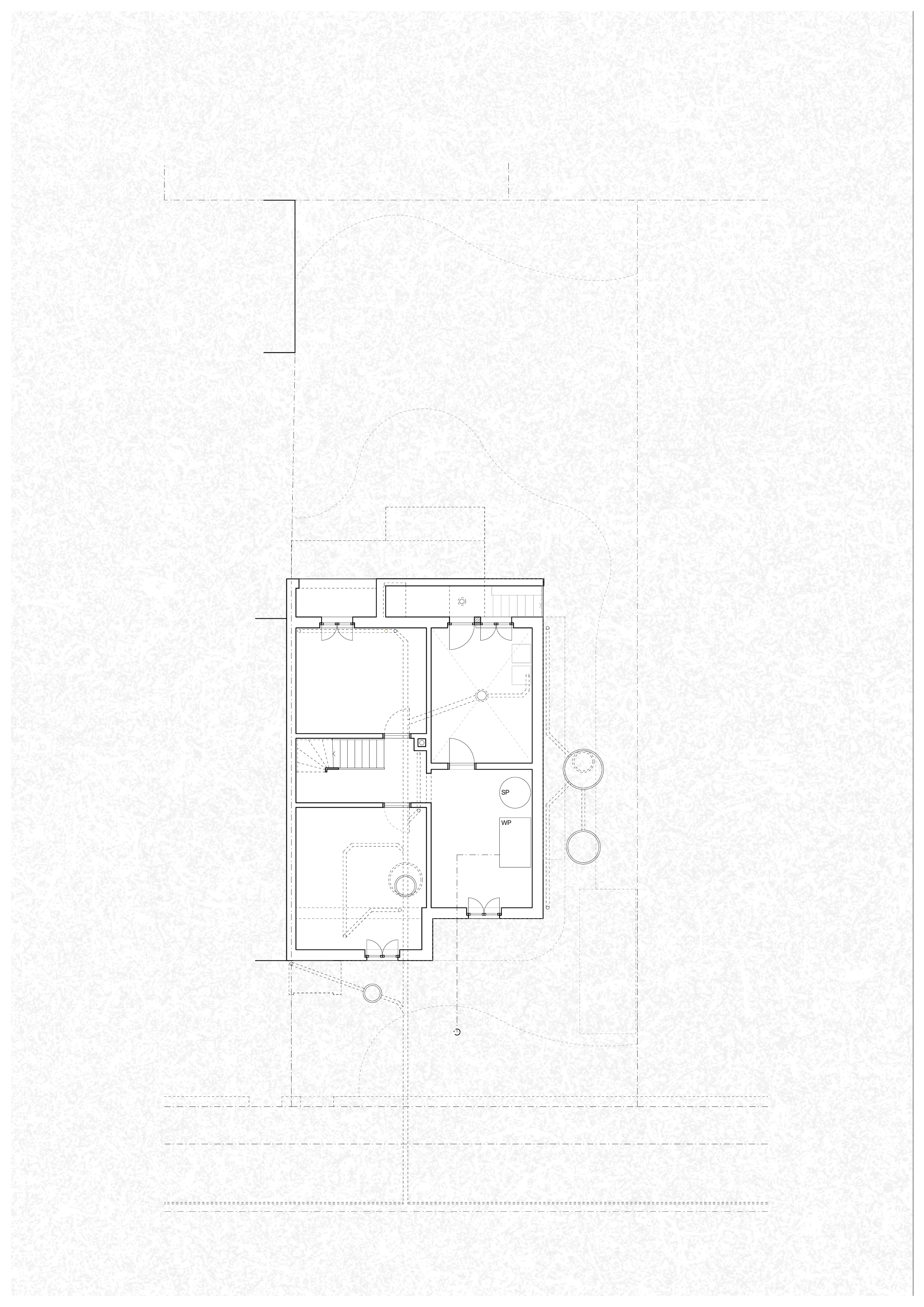
UMBAU “HAUS BAY”
2019-2022
Cueni Architekten
Solothurnerstrasse 72
CH-4053 Basel
+41 (061) 361 25 25
info@cueniarchitekten.ch